1911 Encyclopædia Britannica/Telephone
TELEPHONE (Gr. τῆλε, far, and φώνη, voice). Telephony is the art of reproducing sounds at a distance from their source, and a telephone is the instrument employed in sending or receiving such sounds. The term “telephony” was first used by Philipp Reis of Friedrichsdorf, in a lecture delivered before the Physical Society of Frankfort in 1861.[1] But, although this lecture and Reis’s subsequent work received considerable notice, little progress was made until the subject was taken up between 1874 and 1876 by Alexander Graham Bell, a native of Edinburgh, then resident in Boston, Mass., U.S.A. Bell, like Reis, employed electricity for the reproduction of sounds; but he attacked the problem in a totally different manner. This will be better understood if we consider shortly on what the chief characteristics of sound depend.
The sensation of sound is produced by rapid fluctuation
in the pressure of the atmosphere on the tympanum of the
ear. If the fluctuations are irregular and non-periodic,
the sound is called a noise; if they are cyclic and
follow a regular and sufficiently rapid periodic law,
the sound is musical. In connexion with the present subject
Characteristics
of sound.
it is important to notice the three characteristics of a musical
sound. namely, pitch, loudness and quality. The pitch of a
musical sound depends on the number of cycles passed through
by the fluctuations of the pressure per unit of time; the loudness
depends on the amount or the amplitude of the fluctuation
in each cycle; the quality depends on the form or the nature
of the fluctuation in each cycle. The necessary condition for
a successful system of telephony is the ability to reproduce
these characteristics.
In 1831 Wheatstone by his “magic lyre” experiment showed[2] that, when the sounding-boards of two musical instruments are connected together by a rod of pine wood, a tune played on one will be faithfully reproduced by the other. This only answers, however, for telephoning musical sounds to short distances. Another and somewhat similar example is furnished by what has been variously designated as the “string,” Mechanical telephone.“toy,” “lovers,” and “mechanical” telephone. Two disks of thin metal, or two stretched membranes, each furnished with a mouthpiece, are connected together by a thin string or wire attached at each end to the centres of the membranes. A good example may be made with two cylindrical tin cups; the bottoms form the membranes and the cups the mouthpieces. When the connecting string is held taut and sounds, such as those of ordinary speech, are produced in front of one of the membranes, pulses corresponding to the fluctuations of the atmospheric pressure are transmitted along the string and communicated to the other membrane, which in its turn communicates them to the air, thus reproducing the sound. In both these examples all the three characteristics—pitch, relative intensity, and quality—of sound are reproduced.
In July 1837 Dr C. G. Page of Salem, Mass., drew attention to the sound given out by an electromagnet at the instant when the electric circuit is closed or broken, and in October of the same year he discussed, in a short article[3] entitled “Galvanic Music,” the musical note produced by rapidly revolving the armature of an electromagnet Page’s discovery. in front of the poles. Experiments bearing on this subject were subsequently made by a great number of investigators.[4] Page’s discovery is of considerable importance, in connexion with the theory of action of various forms of telephone, and was a very important feature in the early attempts by Reis to transit music and speech. On the 26th of August 1854 there appeared in L’Illustration (Paris) an interesting article by Charles Bourseul on the electric transmission of speech.[5] The writer recommended the use of a flexible plate at the source of sound, which would Bourseul’s suggestions.vibrate in response to the varying pressure of the air, and thus open and close an electric circuit, and of a similar plate at the receiving station, which would be acted on electromagnetically and thus give out as many pulsations as there are breaks in the current. These suggestions were to some extent an anticipation of the work of Reis; but the conditions to be fulfilled before the sounds given out at the receiving station can be similar in pitch, quality and relative intensity to those produced at the transmitting station are not stated, and do not seem to have been appreciated.
In Reis’s lecture an apparatus was described which has given rise to much discussion as to priority in the invention of the telephone. The instrument was described in over fifty publications[6] in various countries, and was well known to physicists previous to Bell’s introduction of the electric telephone as a competitor with the electric telegraph. knownReis’s telephone. Reis caused a membrane to open and close an electric circuit at each vibration, thus transmitting as many electric pulses through the circuit as there were vibrations in the sound. These electric pulses were made to act on an electromagnet at the receiving station, which, in accordance with Page’s discovery, gave out a sound of a pitch corresponding to the number of times it was magnetized or demagnetized per second.
Reis’s object was to reproduce at a distance not only music but also human speech; but that he did not wholly succeed is clear from the following extract from his lecture:—“Hitherto it has not been possible to reproduce human speech with sufficient distinctness. The consonants are for the most part reproduced pretty distinctly, but not the vowels as yet in an equal degree.” Considering the time at which he wrote, Reis seems to have understood very well the nature of the vibrations he had to reproduce, but he failed to comprehend how they could be reproduced by electricity. His fundamental idea—the interruption of the current—was a fatal mistake, which was not at the time properly understood. The suggestion of Bourseul and the experiments of Reis are founded on the idea that a succession of currents, corresponding in number to the successive undulations of the pressure on the membrane of the transmitting instrument, could reproduce at the receiving station sounds of the same character as those produced at the sending station. Neither of them seemed to recognize anything as important except pitch and amplitude, and Reis thought the amplitude was to some extent obtained by the varying length of contact in the transmitting instrument. This might possibly be true to a small extent; but, considering the small capacity of the circuits he used and the nature of his receiving instrument, it is hardly probable that duration of contact sensibly influenced the result. The quality of the sounds was to some extent also reproduced; but, judging from the results of later telephone investigation, it is highly probable that this was due, not to the varying duration, but to the varying firmness of the contact.
The next worker at the telephone, and the one to whom the present great commercial importance of the instrument is due, was Bell. His aim was the production, by means of the undulations of pressure on a membrane caused Bell’s researches. by sound, of an electric current, the strength of which should at every instant vary directly as the pressure varied.[7] His first idea seems to have been to employ the vibrations of the current in an electric circuit, produced by moving the armature of an electromagnet included in the circuit nearer to or farther from the poles of the magnet. He proposed to make the armature partake of the vibrations of the atmosphere either by converting it into a suitable vibrator or by controlling its vibrations by a stretched membrane of parchment.
|
| Fig. 1.—Bell’s First Telephone (1875); one-fifth full size. |
In the early trials the armature had the form of a hinged lever of iron carrying a stud at one end, which pressed against the centre of a stretched membrane. Fig. 1 shows the arrangement. M was a membrane stretched by a ring R over the end of a tube T fixed at one side of the frame F. To the opposite side of the frame an electromagnet I was fixed with its axis in line with the tube T, and between the end of the electromagnet and the membrane a hinged armature A was arranged in such a way that its motion could be controlled by the membrane. The instrument was joined in circuit with a battery and another similar instrument placed at a distance; and a continuous current was made to flow through the circuit, keeping the electromagnets energized. The experiments with this form were not successful, and, with the view of making the moving parts as light as possible, he substituted for the comparatively heavy lever armature a small piece of clock spring, about the size of a sixpence, glued to the centre of the diaphragm. The magnet was mounted with its end carrying the coil opposite, and very close to, the centre of the piece of clock spring. This answered sufficiently well to prove the feasibility of the plan, and subsequent experiments were directed to the discovery of the best form and arrangement of the parts. An increase in the size of the iron disk attached to the membrane augmented both the loudness and the distinctness of the sounds, and this finally led to the adoption of a thin iron disk supported round its edge, acting as both membrane and armature (fig. 2). Again, the form of the opening or mouthpiece in front of the membrane exercised considerable influence on the efficiency of the instrument, and it was ultimately ascertained that a small central opening, with a thin air space extending across the face of the membrane, was best. It was also found that comparatively small magnets were sufficient, and that there was no particular virtue in the closed circuit and electromagnet, but that a small permanent magnet having one pole in contact with the end of the core of a short electromagnet, the coil of which was in circuit with the line, but which had no permanent current flowing through it, answered the purpose quite as well.[8] The apparatus thus acted as both a transmitter and a receiver; indeed it is essentially the magneto-receiver which has come into universal use in practical telephony, though for transmission it was soon superseded by forms of microphonic transmitters.

Fig. 2.—Bell’s Telephone (1877). M, permanent magnet;
E, electromagnet; C, diaphragm; t t1, terminals.

Fig. 3.—Double Pole Receiver.
One of the latest forms of receiver, known as the double pole, is shown in fig. 3. M and M′ are two permanent magnets; P and P′ are soft iron pole-pieces upon which are placed the electromagnet coils C and C′; D is the diaphragm; I is a soft iron distance piece placed between the magnets at the end remote from the diaphragm; B is the brass body of the instrument, over which is placed a thin ebonite shell S. E is the ear-piece made of ebonite; F is a cap of the same material enclosing the receiver terminals, which are mounted upon the ebonite block G, attached to the distance piece I.
|
| Fig. 4.—Edison’s Micro- phone Transmitter. |
A telephone transmitter and a receiver on a novel plan were patented in July 1877 by Edison, shortly after the introduction of Bell’s instruments. The receiver was based on the change of friction produced by the passage of an Edison’s instruments. electric current through the point of contact of certain substances in relative motion. In one form a drum, mounted on an axis and covered by a band of paper soaked in a solution of caustic potash, was turned under a spring the end of which was in contact through a platinum point with the paper. The spring was attached to the centre of a diaphragm in such a way that, when the drum was turned, the friction between the point of the spring and the paper deflected the diaphragm. The current from the line was made to pass through the spring and paper to the cylinder. Now it had been previously shown by Edison that, when a current was made to pass through an arrangement like that just described, the friction between the paper and the spring was greatly diminished. Hence, when the undulating telephonic currents were made to pass through the apparatus, the constant variation of the friction of the spring caused the reflexions of the diaphragm to vary in unison with the variation of the electric currents, and sounds were given out corresponding in pitch, and also to some extent in quality, with the sounds produced at the transmitting station. A cylinder of chalk was used in some of Edison’s later experiments with this receiver.
The transmitter (fig. 4), in an early form, consisted of a cell of insulating material having at its bottom a flat-headed platinum screw G; on the top of G was a layer of carbon powder C, on the top of that a platinum disk D, and above that again, forming the cover of the cell, a disk of ivory B, held in position by a ring E. Resting on the centre of the ivory disk was a small piece of rubber tubing, and this was lightly pressed by the diaphragm A, which was held in place by the mouthpiece M. The varying pressure on A, when a sound was produced near it, caused corresponding variations in the pressure on the carbon powder, and this produced similar variations in its electric resistance.
Experiments very similar to these of Edison were made by Elisha Gray of Boston, Mass., and described by him in papers communicated to the American Electrical Society in Grays 1875 and 1878. In these experiments the electric Elisha Gray’s experiments.current passed through the fingers of the operator’s hand, which thus took the place of the spring in Edison’s apparatus. The diaphragm was itself used as the rubbing surface, and it was either mounted and rotated or the fingers were moved over it. When the current passed, the friction was felt to increase, and the effect of sending a rapidly undulating current through the arrangement was to produce a sound. The application of this apparatus to the transmission of music was described by Gray.[9]
In another form of telephone, brought prominently forward by Professor A. E. Dolbear,[10] the effects were produced by electrostatic instead of electromagnetic forces, as in the Bell telephone. Sir W. Thomson (Lord Kelvin) Dolbear’s condenser telephone. observed in 1863[11] that when a condenser is charged or discharged, a sharp click is heard, and a similar observation was made by Cromwell F. Varley, who proposed to make use of it in a telegraphic receiving instrument.[12] In Dolbear’s instrument one plate of a condenser was a flexible diaphragm, connected with the telephone line in such a way that the varying electric potential produced by the action of the transmitting telephone caused an increased or diminished charge in the condenser. This alteration of charge caused a corresponding change in the mutual attraction of the plates of the condenser; hence the flexible plate was made to copy the vibrations of the diaphragm of the transmitter. It is obvious that this apparatus might be used either as a transmitter or as a receiver, but that the effects must under ordinary circumstances be in either case extremely feeble.
It was very early recognized—and, indeed, is mentioned in the first patents of Bell, and in a caveat filed by Elisha Gray in the United States patent office only some two hours after Bell’s application for a patent—that Liquid transmitters of Bell and E. Gray. sounds and spoken words might be transmitted to a distance by causing the vibrations of a diaphragm to vary the resistance in the circuit. Both Bell and Gray proposed to do this by introducing a column of liquid into the circuit, the length or the resistance of which could be varied by causing the vibrations of the diaphragm to vary the depth of immersion of a light rod fixed to it and dipping into the liquid.
On the 4th of April 1877 Émile Berliner filed a caveat in the United States patent office, in which he stated that, on the principle of the variation with pressure of the resistance at the contact of two conductors, he had made Berliner’s microphone transmitter. an instrument which could be used as a telephone transmitter, and that, in consequence of the mutual forces between the two parts of the current on the two sides of the point of contact, the instrument was capable of acting as a receiver. The caveat was illustrated by a sketch showing a diaphragm with a metal patch in the centre, against which a metal knob was lightly pressed by an adjusting screw. This seems to have been the first transmitter in which it was proposed to use the resistance at the contact of two conductors.
Almost simultaneously with Berliner, Edison conceived the idea of using a variable resistance transmitter.[13] He proposed to introduce into the circuit a cell containing carbon powder, the pressure on which could be varied by the Edison’s microphone transmitter. vibrations of a diaphragm. He sometimes held the carbon powder against the diaphragm in a small shallow cell (from a quarter to half an inch in diameter and about an eighth of an inch deep), and sometimes he used what he describes as a fluff, that is, a little brush of silk fibre with plumbago rubbed into it. In another form the plumbago powder was worked into a button cemented together with syrup and other substances. In the specification of the patent applied for on the 21st of July 1877 he showed a sketch of an instrument which consisted of a diaphragm, with a small platinum patch in the centre for an electrode, against which a hard point, made of plumbago powder cemented together with india-rubber and vulcanized, was pressed by a long spring, the pressure of the carbon against the platinum disk being adjusted by a straining screw near the base of the spring. Subsequently he filed an application for a patent in which various forms of springs and weights assisted in maintaining the contacts and otherwise improved the instrument.
In the early part of 1878 Professor D. E. Hughes, while engaged in experiments upon a Bell telephone in an electric circuit, discovered that a peculiar noise was produced whenever two hard electrodes, such as two wires, were Hughes’s microphone. drawn across each other, or were made to touch each other with a variable degree of firmness. Acting upon this discovery, he constructed an instrument which he called a “microphone,”[14] and which consisted essentially of two hard carbon electrodes placed in contact, with a current passing through the point of Contact and a telephone included in the same circuit. One of the electrodes was attached to a sounding board capable of being vibrated by sound-waves and the other was held either by springs or weights in delicate contact with it. When the sounding board was spoken to or subjected to sound-waves, the mechanical resistance of the loose electrode, due to its weight, or the spring, or both, served to vary the pressure at the contact, and this gave to the current a form corresponding to the sound-waves, and it was therefore capable of being used as a speaking-telephone transmitter[15] The next transmitter of note was that introduced by Francis Blake, which came into wide use in the United States of America and other countries. In it the electrodes were of platinum and carbon.
To a frame F (fig. 5) was attached a diaphragm D of thin sheer iron; in front of this was a cover M, M provided with a suitable cavity for directing the sound-waves against the diaphragm. The microphonic arrangement consisted of a spring S, about the hundredth of an inch thick and the eighth of an inch broad, fixed at one end to a lever L, and carrying at its free extremity a brass block W. In one side of W a small disk C of gas carbon was inserted, resting on the hemispherical end of a small platinum pin K, about the twentieth of an inch in diameter, held in position by a thin spring A. The pressure of the carbon on the platinum point could be adjusted by the screw N, which turned the lever about the flexible joint G. The electrical connexions of the instrument as arranged for actual use are also illustrated in the figure. The current circuit went through S, W, C, K, A, and the primary circuit of the induction coil I to the battery B, and thence to S again. This formed a local circuit at the transmitting station. The line of circuit passed through the secondary of the induction coil I to the line, from that to the telephone T at the receiving station, and their either to earth or back to the induction coil by a return line of wire.
Another type of microphone which was used in Europe much more than in the United States was the multiple-contact instrument. In this several microphonic joints were employed.

Fig. 5.—Blake’s Transmitter.
Thus, in the Crossley transmitter four hard carbon pencils were arranged in a lozenge-shaped figure, the ends of each pencil resting loosely in a small carbon block. These blocks were fastened to a diaphragm of wood. The circuit connexions were such that two adjacent sides of the lozenge were in parallel and two in series. In the Ader transmitter as many as twelve carbon pencils were employed, arranged in a series of two groups with six pencils in parallel in each group. These were supported at their ends in parallel carbon bars, which were carried by a nearly horizontal wooden diaphragm. Such multiple-electrode transmitters give a loud although somewhat harsh sound, and will bear being spoken to very strongly without breaking the circuit.
A type of transmitter which has come to be invaluable in connexion with long-distance telephony, and which has practically superseded all other forms, is the granular carbon transmitter. The earliest instrument of this kind was the Hunnings transmitter, patented in 1878. This was constructed of a shallow box placed in a vertical position, with metallic front and back and insulating sides. The front face was of thin metal, and served as a diaphragm. The box was filled nearly, but not quite full, of granulated hard carbon. The current from the battery used passed from the diaphragm through the granulated carbon to the metallic back of the box. When spoken to the diaphragm vibrated, and thus set the carbon granules into vigorous vibration. The vast number of micro phonic contacts present give rise to very strong electrical undulations, and hence to a loud sound.
The chief difficulty with this transmitter, and with various others of later date based upon it, has been the frequent packing of the carbon granules, which renders the instrument inoperative. The difficulty was first satisfactorily overcome in the long-distance transmitter, invented by A. C. White in the laboratory of the American Bell Telephone Company, and commonly known as the “solid back transmitter” (fig. 6).
The microphonic portion of the transmitter is contained in a thin cylindrical box or case of brass A, the inner curved surface of which is covered with an insulating layer of paper. The case is firmly fixed to a “bridge” B with its back or bottom in a vertical position. To the brass bottom of the case is attached a thin disk of polished hard carbon C, which is slightly less in diameter than the brass bottom, so that the carbon disk almost entirely covers this brass back, leaving only a slight annular space around its edge. The front or cover of the case is a similar button of hard polished carbon D, also slightly smaller in diameter than the cylindrical wall of the box. It is attached to a brass disk E, which is fastened to the centre of the diaphragm F by means of a rivet, and is capable of moving to and fro like a plunger when the diaphragm vibrates. A washer of thin flexible mica G concentric with the carbon button is carried by the brass disk, and projecting over the edge of this is held firmly against the rim of the cylindrical wall of; the case by an annular brass collar H, which is screwed upon the outer curved surface of this wall. The box is thus entirely closed at the front, while the front carbon disk, which constitutes an electrode, is perfectly free to follow the motions of the diaphragm.

Fig. 6.—Solid Back Transmitter.
The space enclosed between the front and rear faces of the box is filled about three-quarters full of finely granulated hard carbon, which therefore lies in contact with the front and rear carbon disks of the apparatus, and also fills up the space lying between the lower edge of these disks and the curved surface o the case. The current from the battery passes from one of the carbon disks to the other through the particles of granulated carbon which fill the space between them.
The disks and granules constitute a very powerful microphone. The motions impressed upon the carbon granules are very vigorous, and this together with the particular arrangement of the parts of the instrument is effectual in obviating the difficulty from packing which attended the use of earlier forms of granulated carbon transmitters. This instrument has almost entirely displaced all other forms of transmitter.
Subscribers’ Organization.—The employment of the telephone as one of the great means of communication requires a definite organization of the subscribers. It is not practicable to connect each subscriber directly to all the others, hence a -system of exchanges has been adopted. The territory in which a telephone administration operates is usually divided into a number of local areas, in each of which one or more exchanges are placed. An exchange is a central station to which wires are brought from the various subscribers in its neighbourhood, any two of whom can be put in telephonic communication with each other when the proper pairs of wires are joined together in the exchange.
When the subscribers in a local area exceed a certain number, or when for some other reason it is not convenient or economical to connect all the subscribers in the area to one exchange, it is usual to divide the area into a number of districts in each of which an exchange is placed, and to connect these district exchanges together by means of “junction circuits.” In some cases the exchanges are connected together directly; but when the volume of traffic is not sufficient to warrant the adoption of such a course connexions between two exchanges are made through junction centres to which both are connected.
A system of wires, similar to that which connects the district exchanges in an area, links together the various local areas in the territory, and sometimes the territory of one administration with that of another. These inter-area or long-distance lines, called trunk circuits in England, terminate at one exchange in each local area, and between that exchange and the various district exchanges junction circuits are provided for the purpose of connecting subscribers to the trunk lines.
Circuit and Working Arrangements.—The method first employed for working a telephone line was extremely simple. A single line of wire, like an ordinary telegraph line, had a Bell telephone included in it at each end, and the ends were put to earth. Words spoken to the telephone at one end could be heard by holding the telephone to the ear at the other. To obviate the inconvenience of placing the telephone to the mouth and the ear alternately, two telephones were commonly used at each end, joined either parallel to each other or in series. The contrivance most generally adopted for calling attention was a call-bell rung either by a small magneto-electric machine (magneto-generator) or by a battery. The telephone was switched out of circuit when not in use and the bell put in its place, a key being used for throwing the battery into circuit to make the signal. This arrangement is still employed, a hook being attached to the switch lever so that the mere hanging up of the telephone puts the bell in circuit. In some cases when a magneto-generator is employed for calling purposes the coil of the machine is automatically cut out of circuit when it is not in action, and is brought into circuit when the handle is turned by the operation of a centrifugal or other arrangement.
At first it was usual to join the microphone transmitter in the direct circuit. It was soon found that it could only be used to advantage in this way when the total resistance of the circuit, exclusive of the microphone, was small compared with the resistance of the microphone—that is, on very short lines worked with

Fig. 7.—Telephone Set with Transmitter in a Local Circuit.
low resistance telephones. The transmitter on long and high resistance lines worked better by joining, in the manner shown in fig. 7, the microphone, a battery and the primary of an induction coil in a local circuit, and putting the line in circuit with the secondary of the induction coil, which acted as the transmitter. The resistance of the microphone can thus be made a large fraction of the total resistance of the circuit in which it is placed; hence by using considerable currents, small variations in its resistance can be made to induce somewhat powerful currents in the line wire. The requisite energy is derived from the battery.
In the earliest telephone switchboards the lines were connected to vertical conducting strips, across which were placed a series of similar horizontal strips in such a manner that any horizontal could be connected to any line strip by the insertion of a plug into holes provided in the strips for the purpose. Any two lines could be connected together by connecting both to the same horizontal strip.
The next step of importance was the introduction of what was termed the “Standard board.” This board was equipped with spring-jacks and annunciators (calling-drops) for the subscribers lines, and with flexible cords terminating in plugs for connecting purposes. The spring-jack used was a form of switch with two contact springs which pressed against each other, one being connected to the subscriber’s line wire and the other to the annunciator, which was also earthed. When a plug was inserted in the spring-jack the connexion between the springs was opened, disconnecting the calling-drop from the line. Each connecting-cord circuit had associated with it a clearing-out drop connected between the cord and earth and a key by means of which the operator’s speaking and ringing apparatus could be brought into circuit. when a subscriber called (by turning the handle of his magneto-generator), the shutter of the annunciator associated with his line dropped. This attracted the attention of the attendant, who in response to the call inserted a plug into the spring-jack and connected the speaking apparatus to the circuit by means of the key. Then, having obtained particulars of the subscriber’s requirement, the operator connected the second plug to the spring-jack of the wanted subscriber, whom she rang up. When the conversation was finished either of the subscribers, could release the shutter of the clearing-out drop by turning his generator handle, and the operator thus notified of the fact removed the plugs and discontinued the connexion.
The single-wire earthed circuits used in the early days of telephony were subject to serious disturbances from the induction caused by currents in neighbouring telegraph and electric light wires, and from the varying potential of the earth due to natural or artificial causes. The introduction of electric tramways caused an enormous increase in disturbances of this class. It was early recognized that a complete metallic circuit would obviate troubles from varying earth potentials, and that if the outgoing and incoming branches of the circuit were parallel and kept, by transposition spiralling, or otherwise, at equal average distances from the disturbing wire, induction effects would likewise be removed. These advantages led to the gradual super session of the single-wire system until at the present day the all-metallic system is employed almost universally. Since the time when the system first became prominent all switchboards have been arranged for metallic circuits. Though many types of manually operated switchboards have been brought into use, differing from each other in respect of circuit and working arrangements, yet each of them may be placed in one or other of three main classes according as the system of working is magneto, call-wire, or common battery. The fundamental principle of the magneto system has been described in connexion with the “Standard board.”
In a large exchange a number of operators are necessary to attend to calls. Several single switchboards like that described may be employed, each devoted to a certain section of the subscribers, an placed in care of an operator. In these circumstances, when, as frequently will be, the case, the person calling desires to be put in communication with a subscriber who belongs to another section, connexions must be established in the office between the two sections; this necessitates additional switchboard arrangements, and also increases the time required to put subscribers in communication with one another. The difficulty was obviated by the introduction of the “multiple switchboard.” This board is built up in sections of one or more operators’ positions each. All the subscribers' lines are connected in order to jacks on the first two or three or four operators' positions, and these connexions are repeated or “multiplied” upon each succeeding similar group of positions. Each subscriber’s circuit is further connected to another spring-jack directly associated with the calling-drop. These spring-jacks, known as answering jacks, are distributed along the switchboard, a certain number being terminated upon each position and placed in the care of the operator assigned to that position. Hence this operator, when signalled in the ordinary way, can put any one of these subscribers in connexion with any subscriber whatever, without the necessity of calling upon another operator to make connexions.
Two methods of “multiplying” have been much used. In the arrangement first introduced 'the, line wire is connected in series through the various spring-jacks, the circuit finally passing through the answering jack to the calling-drop. This arrangement is liable to give trouble, as dis connexions may arise in the spring-jacks in consequence of the failures of the springs to make contact. Operating mistakes also cause interruptions to conversations, as it is possible, ~by the insertion of a plug in a multiple jack, to disconnect the circuit between two talking subscribers. To overcome these difficulties the “branching multiple ” was introduced. In this arrangement, instead of the circuit being made through the jacks in series, each jack is connected to an independent branch from the main circuit. With the “branching multiple " the “self restoring drop” was introduced. This apparatus has two coils, one of which, connected across the line, is provided for the purpose of projecting the shutter, while the other is intended for its restoration and is joined in a local circuit arranged to be closed when a plug is inserted in any one of the associated jacks. It is necessary that the operators working at a multiple board shall be able to ascertain without entering a subscriber’s circuit whether the circuit be disengaged. This requirement is usually met by connecting a third or “test” wire to each of the jacks associated with a subscriber’s line, and by making the circuit arrangements such that this wire is either disconnected or at earth potential when the line is not in use, and at some potential above or below that of the earth, when the circuit is engaged. With a proper arrangement of the operator’s speaking set it is possible, by touching the socket of a jack with the tip of a peg or a special “test” thimble, to determine whether the circuit connected to the jack is in use.
Both the series and the branching methods of multiplying are recognized at the present time as standard methods, although the former is only employed in comparatively small exchanges. The magneto system itself is dying out. There are still many magneto exchanges in existence, but when new exchanges are erected only the very smallest are equipped for magneto working, that system having succumbed to the common battery one in the case of all equipments of moderate and large dimensions.
The “call-wire” system has been used to some extent, but it is now obsolete. The feature of the system was the provision of special service circuits, termed call-wires, for purposes of communication between the subscribers and the exchange operators. Each subscriber was given the exclusive use of a circuit as in other systems, and shared a call-wire with a number of other subscribers. Each telephone set was equipped with a special key or switch by means of which the telephone could be transferred from an exclusive line to the call-wire at will. A subscriber desiring a connexion pressed the key and communicated his own number and that of the wanted subscriber to the operator in attendance on the call-wire. Then, when the connexion was made, the originating subscriber rang up the other. At the close of a conversation the originating subscriber again entered the call-wire and requested the operator to take down the connexion. The call-wires were usually equipped with drops in order that the exchange might be called at night when the operators were not listening continuously.
One of the greatest advances made in the development of the art of telephony was the introduction of the "common battery relay system." This advance did not merely remove the primary batteries from the subscribers' stations; it removed also the magneto-generator, and at the same time it modified considerably the conditions governing the exchange operating. The calling drop of the magneto system was displaced by a relay and a small electric incandescent lamp, and whereas in the older system the calling-drop and the answering jack with which it was associated were some distance apart, the calling-lamp and the answering jack of the newer system were placed in juxtaposition. This alteration improved the operating conditions in three ways. In the first place it increased the visibility of the signalling instrument; in the second place it brought that instrument into the position in which it could most readily catch the operator's eye; and finally it eliminated the effort involved in associating one piece of apparatus with another and in finding that other. Moreover the clearing-out drop of the cord circuit was replaced by an arrangement which included the provision of one signal to be controlled through the agency of a relay by the calling subscriber, and another to be controlled by the person wanted. These supervisory signals took the form of lamps and were placed on the keyboard in positions immediately adjacent to the associated cords. With the adoption of relays the signalling between the subscribers and the exchange became automatic, and, with the introduction of the principle of double and automatic supervision on the cord circuits, it became possible for the operators to tell at any instant the state of a connexion. As a result the time occupied by an operator per call was reduced from 50-77 seconds to 16.63 seconds.
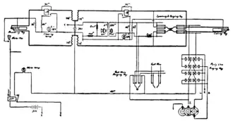
Three fundamental common battery transmission systems have been devised and are shown in figs. 8, 9 and 10. In the Hayes system (fig. 8) a repeating coil is placed in the cord circuit, and when two subscribers are connected together the winding connected to the line of the subscriber who is talking for the time being acts as primary, and the other, which is in the line of the listening subscriber, as secondary.

From the Post Office Electrical Engineers' Journal.
Fig. 8.—Hayes Common Battery System.

From the Post Office Electrical Engineers' Journal.
Fig. 9.—Stone Common Battery System.
The Stone system (fig. 9) is characterized by the use of impedance coils between the battery and the line wires. When one of two subscribers connected together by this arrangement talks, the variation in resistance of the transmitter spoken into causes a variation of the pressure at the line terminals of the impedance coils, and since those terminals are common to the two circuits the variable E.M.F. operates in the line of the listening subscriber, causing the reproduction of the speech in the latter's receiver. The Stone system, compared with that of Hayes, possesses the disadvantage that one of the conditions affecting the supply of current to any particular subscriber's circuit is the resistance of the other circuit to which it is connected for the time being. An improvement in this respect has been effected by the insertion of condensers in the cord circuits, coupled with the use of two sets of impedance coils, one set on each side of the condensers.

From the Post Office Electrical Engineers' Journal.
Fig. 10.—Dean Common Battery System.

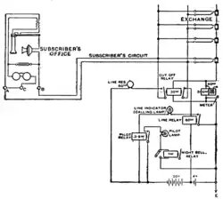
Fig. 11.—Subscriber's Circuit, Common Battery System.
Dean's method (fig. 10) embodies the idea of supplying current to the transmitters over the line wires in parallel instead of round the loop circuit, as in the other systems referred to. An earth return is used. The transmitter is placed in multiple with the primary winding of an induction coil whose secondary operates in the loop circuit, and consequently when the transmitter is spoken into, a variable E.M.F. is impressed upon the circuit through the medium of the induction coil. The impedance coils shown connected between the battery and the lines and between the latter and the transmitters are joined up non-inductively as regards the transmitter circuits, but inductively as regards the secondary circuits. Figs. 11 and 12 indicate typical subscriber's and connecting-cord circuits as equipped by the Western Electric Company. At the subscriber's station when the receiver is on the hook switch the circuit is through the call-bell and a condenser. The conditions permit of the circulation of the alternating currents of' low periodic it, which are used for operating the bells, but in respect of the battery the circuit is open until the subscriber lifts the receiver, when the hook switch, thus released, joins the transmitter with one winding 'of an induction coil in series across the circuit. A current then flows and in passing round the circuit operates the line relay, with the result that the calling-lam is lighted. The operator, whose attention is thus attracted, inserts a peg in the jack, then throws over the speaking key of the cord circuit, and having ascertained particulars of the requirement places the other peg of the pair in the nearest multiple jack of the wanted subscriber, whom she proceeds to ring up. In the meantime the calling lamp, has darkened; and each subscriber's line being equipped with a cut-off relay whose function it is to disconnect the calling apparatus while the circuit is in use, the insertion of a peg is immediately followed by the disappearance of the calling signal. The supervisory lamp associated with the peg in the wanted subscriber's jack glows from the time that the peg is inserted until the subscriber responds, when it darkens, in which condition it remains until the subscriber restores the receiver to the hook and causes the lamp to light up again. The other supervisory lamp on the cord circuit is controlled in a similar manner by the subscriber who originated the call, and as that subscriber's telephone is off the hook when the peg is inserted, the lamp is not lighted at all until the subscriber replaces the receiver. When both lamps glow, the operator, who thereby knows that both subscribers have restored their instruments, discontinues the connexion.

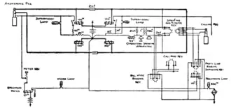
From the Port Office Electrical Engineers' Journal.
Fig. 12.—Typical Cord Circuit, Western Electric Co.'s System, No. 1 Exchanges.
A cord circuit, similar in many respects, including the method of operation, but equipped with condensers and impedance coils, in place of the repeating coil, is shown in fig. 13.
In fig. 11 a meter or counter is shown associated with the subscriber's line, and in both figs. 12 and 13 position meters are shown connected to the cord circuits. The operation of these meters is controlled by the operators. The subscriber's meter is joined in multiple with the cut-off relay, and whenever a pe is connected to the circuit a current flows through the meter. This current is small, however, and the meter is not operated until a much larger current is passed through it. Calls are registered by pressing a key, which connects a battery through a position meter of very low resistance to the socket of the line jack, thereby furnishing the necessary energy to the meter. The position meter just mentioned is common to all the cords on one position and records all completed calls handled at the position. Some administrations, in addition to employing the ordinary position meter, use a second one for registering ineffective calls.
In large towns served by a number of exchanges the junction equipment is an important feature. In many cases from 60 to 80 per cent. of the calls originated at an exchange are for subscribers connected to other exchanges, and in these cases the junction plant forms a considerable fraction of the whole equipment. Moreover each call junction is dealt with by at least two operators. The junction circuits connecting two exchanges are invariably divided into two groups, one for traffic, from exchange A to exchange B, the other for traffic from B to A. At the outgoing end the circuits are multiplied on the subscribers' switchboard, while at the incoming end they terminate in plugs on a special incoming junction switchboard upon which the subscribers' lines are multiplied in the usual way.
When a subscriber at exchange A asks for a H connexion to a subscriber at B, the operator at A, to whom the request is made, passes the particulars over an order wire to an operator at B. The latter names a disengaged junction circuit, then "tests" the line of the wanted subscriber, and if she finds it free. finally completes the connexion and rings the subscriber. During the progress of these operations the A operator connects the originating subscriber to the junction circuit named by the B operator. There is only one signal on the cord circuit at B, and that signal is controlled by exchange A. Each of the subscribers controls a signal at A, and when either or both of the telephones are replaced, the action is indicated by the lamps there. Control of the call is thus vested in the operator at the originating exchange, at which point the connexion must be severed before a clearing signal can appear at B.
Party Lines.—A circuit which serves more than one subscriber is termed a "party line." It was originally the practice to place the calling apparatus in series in the line circuit, but the effect of the large impedance introduced by the electromagnets of the call bells was such that not more than two or three persons could be connected without seriously impairing the efficiency of the circuit for speech transmission. An improvement was effected in this respect by the introduction of the "bridging" system, in which the bells possessing high inductance are placed in parallel between the two wires of the circuit. Although the bells are constantly in circuit their high impedance prevents any appreciable interference with the telephonic currents. In America, on farmers' circuits, ten or more stations are frequently connected to one line; but in England ten is practically the maximum. In city districts the modern practice is to restrict the number to four stations per line, and to equip the exchanges and stations for selective ringing. In one arrangement, now in extensive use, each telephone set is fitted with a relay of high inductance which is bridged across the circuit in series with a condenser. When the relay is operated it connects a bell between one-of the wires of the circuit and earth, while the bell itself is arranged to respond to current pulsations in one direction only. The four telephones on a circuit are so wired that the relays connect two of the bells between each wire and earth, and further that one of each pair of bells responds to positive and the other to negative pulsations. This system of course requires that the exchange equipment shall include machines capable of delivering a positive pulsating current and a negative pulsating current, besides the usual alternations required for the ringing of ordinary subscribers.
In another party line system a harmonic principle is employed: the ringing machines deliver alternating currents of four frequencies, while each bell is constructed to operate at a particular frequency only. Of the four bells connected to a circuit each responds to a different frequency.
Trunk Line Working.—Trunk or long-distance working is complicated by the necessity for recording all calls. The system of the British Post Office is worked as follows: A subscriber desiring a long-distance connexion calls up his local exchange in the ordinary way, and the operator there, being informed that a trunk connexion is desired, extends the subscriber's line to the Post Office by means of a record circuit. At the Post Office a record operator replies and takes particulars of the connexion, and these are entered upon a ticket. The record operator then removes her speaking apparatus from the circuit, and the local operator, receiving a disconnect signal, severs the connexion at the local exchange. Meanwhile the ticket is conveyed to the position where the lines to the town wanted are terminated. If there be a line free, or when the turn of the call is reached, particulars of the connexion wanted are passed to the distant end, and the trunk operators request the local exchanges to connect the subscribers by means of junction circuits to the trunk exchanges where the necessary connexions are made between the trunk line and the junctions. The call is controlled by the trunk operators, the junction circuits being equipped in such a manner that the subscribers' signals appear at the trunk exchanges, from which point disconnecting signals are sent automatically to the local exchanges, when the connexions between the trunk and the junction circuits are removed.

From the Port Office Electrical Engineers' Journal.
Fig. 13.—Typical Cord Circuit, British Insulated Co.'s System.
The large modern trunk exchanges are equipped with relays and lamps for signalling purposes. "Calculographs" are employed for stamping the time upon the tickets, and there is associated with each trunk circuit a device which lights a lamp as soon as the scheduled limit of the period of conversation is reached.
Particulars of calls are now passed between trunk centres to a great extent over telegraph circuits superposed upon the trunk lines. This arrangement permits particulars of calls to be passed over lines while conversations are in progress.
Automatic Systems.—The idea of automatic telephony is to substitute for the operator of the manual exchange an electromechanical or other switching system, which, controlled in its movement by the action of the subscriber, will automatically select, connect and disconnect circuits as desired. Several schemes embodying this idea have been developed, and one of them has been put into extensive operation. Each subscriber’s circuit on this system terminates upon the incoming portion of a selector switch, called a first selector, and is multiplied upon the outgoing portions of a number of similar switches called connector switches. Only calls originated by a subscriber pass through the selector switch (first selector) provided for his sole use; the calls incoming to him pass through one or other of the various connector switches upon which his circuit is multiplied. Each connexion involves the use of three switches, viz., a first Selector, a connector switch, and a second selector which is brought into operation between the other two.
The subscribers’ lines in an exchange are arranged in groups of 1000, which are divided in turn into sub-groups of 100 each. By means of his first selector the circuit of a calling subscriber is connected to the outgoing end of a junction whose other end terminates upon the incoming portion of a second selector in the thousand group to which the wanted subscriber belongs. The second selector in turn extends the connexion by means of another junction circuit to one of the connector switches in the hundred group wanted, while finally the connector switch completes the connexion. One hundred circuits are connected to the outgoing portion of each switch, and the contacts upon which they terminate are arranged in a number of horizontal rows upon the face of a curved surface, at whose axis a vertical shaft is placed. This shaft, which carries a set of “wipers” connected to the incoming circuit, is susceptible of a vertical and a rotational movement, so that the wipers may be brought, first opposite any particular horizontal series of contacts, and then into actual contact with any particular set in the series. The movements of the shaft are controlled by relays and electro-magnets which operate in response to the action of the subscriber whose telephone is fitted with a calling mechanism which, when the subscriber calls, earths the line a certain number of times for each Figure in the number of the wanted subscriber.
Wire Plant.—In suburban and rural districts subscribers are usually served by means of bare wires erected upon wooden or iron poles. As subscribers’ lines are invariably short, the smallest gauge of wire possessing the mechanical strength necessary to withstand the stresses to which it may be subjected can be employed, and bronze wire weighing 40 ℔ per mile is commonly used. In large towns telephone distribution by means of open wires is practically impossible, and the employment of cables either laid in the ground or suspended from poles or other overhead supports is necessary.
In the types of cable that were first used, the wires, usually with a cotton insulation, were drawn into lead tubes, and the tubes filled with paraffin or other similar compound, which kept the wires from the injurious effects of any moisture which might penetrate the lead tube. This form of cable has been superseded by a type with paper insulation. The separate wires are surrounded only with a loose covering of specially prepared paper, which furnishes abundant insulation. in the manufacture of the cable the wires are first enclosed in the paper, which is applied sometimes longitudinally and sometimes spirally. The conductors are then twisted in pairs with definite lays. These pairs are laid up symmetrically into cables, each layer being protected with an additional covering of paper and all adjacent layers revolving with an opposite twist. The cable is then placed in an oven, and, after all moisture has been driven off, it is passed through a lead press whence it emerges protected by a continuous lead pipe. The electrostatic capacity of a cable of this type is low, and its dimensions are small, the external diameter of a cable containing 1600 ten-℔ conductors being only 23/4 in. The conductors used for subscribers’ circuits are of copper weighing from 10 to 20 ℔ per mile. junction circuits are usually made up of 20 or 40 ℔ conductors.
When a number of cables follow the same route, they are generally laid in conduits made up of earthenware or cement ducts; iron pipes are used when the number of cables is small. Manholes are placed at intervals in the line of ducts to facilitate the drawing in and jointing of the cables, and surface boxes are placed in the footways for distributing purposes. Various methods of making the connexions between the large main cables and the subscribers are in use. In one system the main cables terminate in large airtight irou boxes placed in the manholes. There, the large cables divide into a number of small cables, which are carried along the footways in pipes and are tapped at suitable points to serve subscribers. Another method of distribution, largely adopted, is to run the lead cables into the interior of blocks of buildings, and to terminate them there in iron boxes from which the circuits are distributed to the surrounding buildings by means of rubber-covered wires run along the walls. Aerial distribution from distributing poles is a method frequently adopted. In this case the cables terminate upon the poles, the connexions between the cable wires and the open wires being made with rubber-covered leads.
The introduction in 1883 of the hard-drawn copper wire of high conductivity invented in 1877 by T. B. Doolittle was of the greatest importance in rendering the use of long lines practicable, and it is universally employed for such service. Wire weighing between 150 and 400 ℔ per mile is generally used. The New York-Chicago line, built in 1892, is of wire 165 millimetres in diameter (No. 8 Birmingham), weighing 435 ℔ per mile and having a resistance of 2·05 ohms per mile. Speech has been habitually transmitted for business purposes over a distance of 1542·3 m., viz., over the lines of the American Telegraph and Telephone Company from Omaha to Boston. Conversation has been carried on over 2200 m. of No. 8 line.
As no practical process of telephone relaying has been devised, it is extremely important that the character of the line should be such as to favour the preservation of the strength and form of the telephone current. In circuits possessing high resistance and capacity and low inductance per mile, telephonic currents are rapidly attenuated, and the higher the frequency the more rapid is the attenuation. Moreover, as the velocity of propagation is a function of the frequency, there is distortion of the complex waves. Oliver Heaviside showed mathematically that uniformly-distributed inductance in a telephone line would diminish both attenuation and distortion, and that if the inductance were great enough and the insulation resistance not too high the circuit would be distortionless, while currents of all frequencies would be equally attenuated. Following up this idea, Professor M. I. Pupin showed that by placing inductance coils in circuit, at distances apart of less than half the length of the shortest component wave to be transmitted, a non-uniform conductor could be made approximately equal to a uniform conductor. Many circuits have been “loaded” in the manner proposed by Pupin during recent years, especially in underground cables, and it has been found in practice that the transmission value of these when loaded is approximately from three to four times their value unloaded. Open aerial long distance lines have also been loaded, but not to the same extent. The introduction of inductance coils into such circuits renders them more susceptible to trouble from atmospheric electricity and more sensitive to leakage variations.
In consequence of their high capacity, the attenuation constant of submarine cables is high, and only a small number of cables, of comparatively short length, are in use for telephonic purposes. Attempts have been made to improve submarine cables in this respect, and in 1906 a short cable “loaded” with Pupin coils was laid across Lake Constance. The problem, however, of constructing a deep-sea cable satisfactorily, with suitable inductance coils inserted at short distances apart, is a difficult one, and one which it cannot be said has been solved. (H. R. K.)
Commercial Aspects.—The records of the telephone industry in Great Britain during the thirty years from 1877 to 1907 form an instructive chapter in the industrial history of the country. The aspects which stand out most prominently in this history are: (a) The vacillation of successive governments due to the conflicting policies adopted from time to time to protect the telegraph revenues of the Post Office and to avoid the suppression of an enterprise which was becoming a public necessity and yielding substantial royalties to the Postmaster-General. (b) The obstructive use made by the local authorities of their power to veto underground wayleaves. (c) The remarkable success achieved by the National Telephone Company, despite these obstacles, in developing an extensive organization and a profitable business.
The chief events in chronological order are:—
1876. Graham Bell’s telephone patent was granted for the United Kingdom.
1877. Edison’s telephone patent was granted for the United Kingdom.
1878. Professor D. E. Hughes invented the microphone, but did not apply for letters patent. The Telephone Company, Limited, was formed to acquire Bell’s patent. During the passage of the Telegraph Bill 1878 through parliament the Postmaster-General endeavoured, without success, to insert a clause declaring that the term “telegraph” included “ any apparatus for transmitting messages or other communications with the aid of electricity, magnetism, or any other like agency.”
1879. The Edison Telephone Company of London was formed. Both the Bell and the Edison Companies opened negotiations with the Post Office for the sale of their patents to the government, but without success. The Edison Company announced its intention to start telephone business in London, and the Postmaster-General instituted proceedings against the company for infringement of his monopoly rights under the Telegraph Act 1869.
1880. The two companies amalgamated as the United Telephone Company Ltd. Mr justice Stephen decided (Attorney-General v. Edison Telephone Company, 6 Q.B.D., 244) that the telephone was a telegraph, and that telephone exchange business could not legally be carried on except by the Postmaster-General or with his consent. The decision covered also future invention in regard to “every organized system of communication by means of wires according to any preconcerted system of signals.”
1881. The company’s appeal against the decision was withdrawn, the Postmaster-General agreeing to grant licences for restricted areas of about 5 m. in London and about 2 m. in the provinces. The licences merely condoned the infringement of the Telegraph Act 1869, and did not confer powers to erect poles and wires on, or to place wires under, any highway or private property. The licensee was precluded from opening public call offices and from laying trunk lines from one town to another. The licences were for 31 years, expiring in 1922, without any provision for purchase or compensation, and were subject to the payment of a minimum royalty to the Post Office of 10 per cent. of the gross revenues. The United Telephone Company confined its operations to London; subsidiary companies were formed to operate in the provinces. The Post Office at the same time established several telephone exchanges in provincial towns so as to enable the Postmaster-General “to negotiate with the telephone companies in a satisfactory manner for licences.”
1882. The Postmaster-General (Mr Fawcett) declared that he would issue no more licences unless the licensees agreed to sell telephones to the Post Office. As a result only eight companies out of over seventy that had applied obtained or accepted licences.
1883. The Post Office proposed to engage in active competition with the telephone companies, but the Treasury at that time opposed this policy on the ground that the state should at most be ready to supplement and not to supersede private enterprise.
1884. The licences within restricted areas having proved unsuitable for the growing business, public opinion appealed to the Post Office to issue new licences applicable to the whole country. All limitations of areas were removed and licensees were allowed to open public call offices but not to receive or deliver written messages, and they were allowed to erect trunk wires. The royalty of 10 per cent. was continued. The Post Office reserved the right to compete either directly or by granting other licences, and it was under no obligation to grant wayleaves. The new licences were to terminate in 1911 without any provision for purchase or compensation in that year, but with the option to the government to purchase the plant of the licensees in 1890, 1897, or 1904 at a price to be determined by arbitration. The United Telephone Company asked parliament for rights of way in streets but was refused, and its only right to place overhead wires was obtained by private wayleaves.
1885. The United Telephone Company again applied unsuccessfully for right to lay wires underground.
1888. The application of the company for permission to lay wires in streets was again refused.
1889. After the withdrawal of the restriction against the companies erecting trunk wires it became evident that the development of the telephone services throughout the country would be facilitated by complete intercommunication and uniformity of systems, and that economies could be effected by concentration of management. The various companies therefore amalgamated as the National Telephone Company. 1890. The government had the option to buy out the companies under the licences of 1884, but did not exercise it. The Bell telephone patents expired. The National Telephone Company applied to the London County Council for permission to lay wires underground and continued efforts till 1899 to obtain this power, but without success.
1891. The duke of Marlborough, in the name of the New Telephone Company, inaugurated a campaign for cheaper telephone services, but the New Telephone Company was subsequently merged in the National Telephone Company.
1892. The National Telephone Company again applied to parliament for powers to lay wires underground; public discontent with inadequate telephone services was expressed, and at the same time the competition of the telephone with the Post Office telegraph became more manifest. The government again changed its policy. It compelled the companies to sell their trunk wires to the Post Office, leaving the local exchanges in the hands of the companies. It also expressed willingness that the companies should have rights of way in the streets.
1893. The National Telephone Company again applied to Parliament for power to lay wires underground, but was refused.
1894. The draft agreement between the government and the National Telephone Company to carry out the policy of 1892 was submitted. to parliament and led to much discussion. Local authorities (particularly London and Glasgow) refused to permit the company to lay wires underground. 1895. A select committee of the House of Commons (with Mr Arnold Morley, Postmaster-General, as chairman) was appointed “to consider and report whether the provision now made for the telephone service in local areas is adequate, and whether it is expedient to supplement or improve this provision either by the granting of licences to local authorities or otherwise.” The committee was not unanimous and made no report, but merely submitted to the House the evidence it had taken.
1896. The trunk wires were transferred to the Post Office in pursuance of the policy of 1892, but for all practical purposes the local authorities had vetoed the permission of the government to the company to lay wires underground.
1897. The government had an option to purchase the plant of the company under the licences of 1884, but did not exercise it. The corporation of Glasgow having persisted in its efforts to obtain a licence, the Treasury appointed Sheriff Andrew Jameson (afterwards Lord Ardwall) a special commissioner to hold a local inquiry in Glasgow to report whether the telephone service in that city was adequate and efficient and whether it was expedient to grant the corporation a licence. The commissioner reported that the service was adequate but not efficient; that the rates were reasonable but that the corporation was responsible for unreasonably withholding facilities, thus rendering the service inefficient; that it was inexpedient to grant the corporation a licence because the funds of a city ought not to be applied for the benefit of a limited class of citizens; that delay and waste would=result from two systems in one area and would increase the difficulties of the government in 1911; and that the corporation had not proved it could work the licence without placing a burden on the rates.
1898. The policy of the government was again changed; Mr R. W. Hanbury, Financial Secretary to the Treasury and representative in the House of Commons of the Postmaster-General, advocated the granting of licences to local authorities; A select committee was appointed with Mr Hanbury as chairman to consider “whether the telephone service is calculated to become of such general benefit as to justify its being undertaken by municipal and other local authorities, and if so under what conditions.” The committee reported (9th August) that the telephone service was not likely to become of general benefit “so long as the present practical monopoly in the hands of a private company shall continue.” The committee considered that the Post Office was not prevented either by legal agreement or by good faith from limiting or ending the monopoly of the company, and that competition appeared to be both expedient an necessary in order to extend and popularize the service and to avoid the danger that a purchase of the company’s undertaking at an inflated price might be forced upon the government. While considering that a really efficient Post Office service would afford the best means for securing such competition, it recommended that general, immediate and effective competition should at once be undertaken either by the Post Office or by local authorities. The Association of Municipal Corporations passed resolution son the 28th of April that “the subject of telephonic supply should be treated as an imperial and not as a local one, and that the Postmaster-General should have the sole control of the telephone system,” and “that in the event of the Postmaster-General not taking over the telephone service it should be competent for municipal and other local authorities to undertake such services within areas composed of their own districts or combination of such districts.”
1899. In pursuance of the report of the select committee, 1898, the Telegraph Act 1899 was passed to enable the Post Office to develop its telephone exchange business, for which a loan of £2,000,000 was sanctioned, and to empower local authorities, subject to certain conditions, to enter upon telephone business. The licence of the National Telephone Company was extended so as to be co-extensive with that of a competitive licence for any locality on condition that the company should afford intercommunication with the telephone systems of the new licensees. In short, all-round competition was authorized, and the Post Office decided to establish a telephone system in London in competition with the company.
1900. The Telegraph Act 1899, while providing for intercommunication between the telephone systems of the local authorities and the company, did not give the Post Office the right to demand intercommunication between its exchanges and those of the company, The Post Office co-operated with the London County Council to put difficulties in the way of the company which had placed wires underground in London with the consent of the local road authorities. In February the Postmaster-General applied for an injunction to restrain the company from opening any street or public road within the county of London without the consent of the Postmaster-General and the London County Council, which injunction was granted in July.
1901. The government policy of 1899 was abandoned in London, the Post Office making an agreement with the company in regard to the London business. The company consented to free intercommunication between its subscribers and those of the Post Office, and undertook to charge rates identical with those charged by the Post Office. The Postmaster-General on the other hand agreed to provide underground wires for the company on a rental, and agreed to buy in 1911 the company’s plant in London at the cost of construction less allowance for repairs and depreciation.
1904. The government had option to purchase the company’s provincial plant under the licence of 1884. Negotiations took place, but no agreement was reached.
1905. The government contracted to buy the company’s plant in 1911, thus in effect annulling the act of 1899 which had failed to accomplish its object of establishing all-round competition.
By 1907 altogether 59 local authorities had examined the proposition of establishing telephone systems after 1899, and licences were granted to local authorities at Brighton, Belfast, Chard, Glasgow, Grantham, Huddersfield, Hull, Portsmouth, Swansea, Tunbridge Wells, Oldham, Scarborough and Hartlepool, but only six municipalities proceeded with the business. Glasgow opened its exchange in March 1901, Tunbridge Wells in May 1901, Portsmouth in March 1903, Brighton in October 1903, Swansea in November 1903 and Hull in October 1904. The Tunbridge Wells and Swansea municipal undertakings were subsequently sold to the National Telephone Company, and the Glasgow and Brighton undertakings to the Post Office. Hull and Portsmouth were the only municipal telephone systems working in 1907.
The effect of the unsettled policy of the Post Office until 1905 and of the difficulties created by the local authorities was that the National Telephone Company was never able to do its best to develop the enterprise on the most efficient lines. In 1885 there were only 3800 telephone subscribers in London and less than 10,000 in the rest of the United Kingdom, and telephonic services were available in only about 75 towns, while in the same year the American Bell Telephone Company had over 134,000 subscribers. The removal in 1884 of the prohibition against the erection of trunk lines at once enabled considerable expansion to take place. Within six years the services had been extended to 400 towns with about 55,000 subscribers. Large as this progress was it would have been much greater if the Telephone Company had been granted adequate powers to put wires underground and thus instal a complete metallic circuit in place of the single wire, earth return, circuit which it was constrained to employ. Subsequently the progress was still greater. In 1906 there were 30,551, equal to 7.2 per cent., more telephone stations in the United Kingdom than in the ten European countries of Austria, Hungary, Belgium, Denmark, Holland, Italy, Norway, Portugal, Russia, Sweden and Switzerland, having a combined population of 288 millions as against a population of 42 millions in the United Kingdom. Apart from France, Germany and Switzerland, there was no European country that had as many telephones working as London. That city, with a population of 6 millions, had nearly as many telephones as the whole of Sweden with about the same population, or as the whole of France, with a population of 39 millions. The only European country which can be compared with the United Kingdom in telephone development is Germany. With a population of 58 millions there are 10.2 telephones per 1000 of the population in that country compared with 10.15 in Great Britain and Ireland. The development of telephony in the United States of America is much greater than anywhere else; on the 1st of January 1907, 5 per cent. of the population were telephone subscribers.
Tariffs.—Telephone business is characterized by two features: (1) that the capital account is never closed, and (2) that the costliness of the service increases with the size of the undertaking. The original method of charging adopted in Great Britain took the telephone instrument as the unit, charging a fixed annual rental independent of the amount of use to which the instrument was put. The study of telephone economics showed that the proper basis for charging was the “message-mile,” on the theory that the user should pay according to the facilities offered and the extent to which he made use of them. In a large city, where several interconnected exchanges have to be built and thousands of subscribers are put into communication with each other, the service is at once more costly and more valuable than in a small town with a few hundred subscribers accommodated in one exchange. Differences not only in the size of towns, but in the arrangement and character of the population, make each district a telephone problem by itself, and nullify close comparisons between telephone rates and telephone efficiencies in different areas and different countries. But the tendency is towards a system of charging a moderate sum to cover the rent of the instrument and an additional fee per message. For instance, in the county of London, the telephone tariff is £5 per annum plus Id. per call within the county and 2d. per call outside the county. Subscribers outside the county of London pay only £4 in annual subscription and 1d. per call to subscribers on the same exchange and 2d. per call to subscribers on other exchanges. In each case the minimum annual amount for message fees is £1, 10s. The alternative is given of an unlimited service (“flat rate”) at £17 per annum. In the provinces the unlimited service costs only £7, 10s. for subscribers within half a mile of the exchange, £1, 5s. being charged for every additional quarter of a mile or fraction thereof. The toll or message rates are £3, with Id. per call. with a minimum of £1, 10s. As the cost of the service varies in proportion to the amount of use, the toll rate is more scientific, and it has the further advantage of discouraging the unnecessary use of the instrument, which causes congestion of traffic at busy hours and also results in lines being “ engaged ” when serious business calls are made. The tariff for unlimited use has to be made very high to cover the cost of the additional burdens thrown upon the service, and it only works economically to the individual subscriber who has an exceptionally large number of calls originating from his instrument. The message-rate system equalizes the charges according to the service rendered. Another method of charge, known as the “measured service rate, ” is designed to make the subscriber pay in proportion to the quality and quantity of the service he takes. It is widely used in America, and was introduced into Great Britain in 1907. The subscriber pays a fixed annual rent which covers a certain number of free outward calls, say 500; additional calls he purchases in advance in blocks of several hundred at so much per hundred, the price being reduced as the number increases.
For subscribers who desire the telephone for occasional use, the party-line system has been devised, whereby several telephones are connected to one line leading to the exchange. In London a two-line party service costs £3 per annum, the message fees being Id. per call to subscribers within the county and 2d. per call to those outside it, with a minimum of £3. The fee charged for the use of public telephone call offices is 2d. per message.
The trunk line service is charged for on rates which vary from 3d. (for 25 m.) up to 1s. (for 100 m.) for a three minutes’ conversation between 6 a.m. and 8 p.m. For every 40 m. above 100 m. an additional 6d. per conversation is charged. A reduction has been made in the charges for trunk calls at night, and calls for single periods of three minutes are allowed at half the ordinary rates between 7 p.m. and 7 a.m. A call between London and Liverpool, which ordinarily costs 2s., can be made for 1s. between those hours. The growth of traffic on this basis has been considerable, and the arrangement has proved of advantage to the public, as it provides cheap facilities at times which are convenient for social conversation. Telephone subscribers may telephone ordinary messages to any post office which may be reached through the local exchange system, or by means of the trunk wires, in order that the messages may be written down and forwarded as telegrams or express letters or ordinary letters. Subscribers to exchanges may also make arrangements to have all telegrams (except Press telegrams) addressed to them delivered by telephone instead of messenger. Telephone subscribers may also obtain the services of an express messenger by telephoning to the nearest post office connected with the exchange.
National Telephone Company.—The issued share and debenture capital of the company on the 31st of December 1907 was:—
| 15,000 6% 1st preference shares of £10 each | £150,000 |
| 15,000 6% 2nd preference shares of £10 each | 150,000 |
| 250,000 5% 3rd preference shares of £5 each | 1,250,000 |
| 6% preferred stock | 2,225,000 |
| Deferred stock | 3,366,425 |
| 71,715 new shares of £5 each | 358,575 |
| £7,500,000 | |
| 31/2% debenture stock | 2,000,000 |
| 4% debenture stock | 1,716,593 |
| £11,216,593 |
The company has a reserve fund of £2,467,707, the major part of which is invested in the business. The gross income for the year 1907 amounted to £2,702,228, of which £257,920 was paid to the Post Office in respect of royalties. The working expenses amounted to £1,530,093 or 62·6 per cent. of the net income, leaving a profit for the year of £914,216
At the time of the formation of the various telephone companies the enterprises were regarded as speculative, and much of the capital was raised at a discount. The business subsequently proved profitable, good dividends were paid, and the securities for the most part commanded, a premium in the market. After the consolidation of the companies in 1889–1890 the profits declined, patent rights had expired, material reductions were made in the rates for telephone services, and considerable replacements of plant became necessary, the cost of which was charged to revenue.
Agreement of 1905.—By this agreement the Postmaster-General agreed to purchase all plant, land and buildings of the National Telephone Company in use at the date of the agreement or constructed after that date in accordance with the specification and rules contained in the agreement, subject to the right of the Postmaster-General to object to take over any plant not suited to his requirements. The price is to be fixed by the Railway and Canal Commissioners as arbitrators on the basis of the “then value,” exclusive of any allowance for past or future profits or any compensation for compulsory sale or other consideration. In those cases in which the company’s licence has been extended beyond 1911 (Glasgow to 1913, Swansea to 1926, Brighton to 1926 and Portsmouth to 1926) the Postmaster-General will buy the unexpired licence with allowance for goodwill. The Postmaster-General agreed also to buy the private wire plant of the company at a value based upon three years’ purchase of the net profits on the average of the three years ending 31st of December 1911. The Postmaster-General also agreed to lay underground wires for the company at an annual rental of £1 per mile of double wire in any local area in which the company was operating, but not in areas in which the municipalities had established exchanges. Free intercommunication was established by the agreement between the subscribers of the company and those of the Post Office, and a scale of charges was adopted or arranged to be agreed as binding on both the Post Office and the company. The late Mr W. E. L. Gaine, general manager of the company, stated before the Select Committee that in the view of the directors the bargain was a hard one, because it gave no consideration in respect of the goodwill of the great business, with its gross income of over £2,000,000 per annum and its net revenue of over £750,000, which the company had built up. The company had had to pay for all the experiments and mistakes which are inherent in the launching and development of any new industry. It had paid the Post Office in royalties already £1,848,000, and the Post Office under the agreement would step into the business in 1911 by merely paying for the plant employed. The Association of Municipal Corporations and the London County Council, on the other hand, considered the terms of purchase to be too favourable to the company. The London County Council, according to the statement of its comptroller, was disturbed by the hope expressed by the manager of the company, that the holders of the company’s ordinary shares would obtain the par value of their shares in 1911. Inasmuch as the debenture stocks and preference shares would have to be redeemed in 1911 at premiums ranging from 3 to 5 per cent., the state would have to pay the company £253,000 in excess of the total of the outstanding securities in order to enable the ordinary shares to receive par, and in the council’s view this payment would diminish the probability of the Post Office being able to afford a substantial reduction in the telephone charges.
Post Office Telephones.—The number of trunk wire centres open on the 31st of March 1907 was 533, and the total number of trunk circuits was 2043, containing about 73,000 m. of double wire. The capital expenditure on the purchase and development of the trunk wire system amounted to £3,376,252. The total number of conversations which took place over the trunk wires during the year 1906–1907 was 19,803,300. The gross revenue derived from the trunk services was £480,658, being an average of 5·82d. per conversation. The total number of subscribers to the Post Office provincial exchanges on the 31st of March 1907 (excluding those in Glasgow and Brighton) was 10,010, and the number of telephones rented was 12,006. The Glasgow system included 11,103 subscribers’ lines with 12,964 telephones, and the Brighton system contained 1542 subscribers’ lines with 1884 telephones. The sum received by the Post Office as rental in respect of private wires was £183,000. The years’ working of the whole telephone system of the Post Office showed a balance of £451,787 after payment of the working expenses, while the estimated amount required to provide for depreciation of plant and interest at 3 per cent. on the total expenditure of £7,252,000 was £432,726.
The number of telephones connected with the Post Office system in the metropolitan area on the 31st of March 1907 was 41,236, and additional subscribers were being connected at the rate of about 150 a week. There were 425 post office call-offices in the London area. The length of underground pipes which had been laid in the metropolitan area for telephone purposes was 2030 m. Cables containing 317,789 m. of wire had been laid, including 69,066 m. rented by the National Telephone Company. The average cost of constructing an exchange circuit in the metropolitan area (including the installation of telephone instruments and of exchange apparatus, but excluding the provision of spare plant) has been £33. Taking into account the whole system (including spare plant of all kinds), the capital expenditure per station (i.e. per telephone connected with an exchange) stands at less than £50.
International Telephone Lines.—The Anglo-French telephone service, which was opened between London and Paris in April 1891, was extended to the principal towns in England and France on the 11th of April 1904. The service has since been extended to certain other English provincial towns; and the Anglo-Belgian telephone service has similarly been extended. There are now four circuits between London and Paris, one between London and Lille, and two between London and Brussels, the last carrying an increasing amount of traffic. Experiments have been made in telephonic communication between London and Rome by way of Paris. It was found possible to exchange speech when the conditions were exceptionally favourable; but in spite of the partial success of the experiment, a public service between the two capitals is not at present practicable.
References.—Reports of Select Committee on Telephone and Telegraph Wires (1885), of Select Committee on Telegraph Bill (1892), of Joint Committee of the House of Lords and the House of Commons on Electric Powers (Protective Clauses) (1893), of Select Committee on Telephone Service (1895), of Select Committee on Telephones (1898), and of Select Committee on Post Office (Telephone) Agreement (1905); Treasury Minutes (1892 and 1899); Annual Reports of the Postmaster-General; Report to the Treasury by Sheriff Andrew Jameson on Glasgow Telephone Enquiry (1897); H. R. Meyer, Public Ownership and the Telephone in Great Britain (London, 1907); E. Garcke, Manual of Electrical Undertakings (1896–1908). (E. Ga.)
- ↑ “Über Telephonie durch den galvanischen Strom,” in Jahresber. d. physikalischen Vereins zu Frankfurt am Main, 1860–61, p. 57.
- ↑ See his Scientific Papers, p. 47.
- ↑ See Silliman’s Jour., xxxii. 396, and xxxiii. 118.
- ↑ Marrian, Phil. Mag., 3rd ser., vol. xxv. p. 382; Beatson, Arch. de l’Elect., v. 197; De la Rive, Treatise on Electricity, i. 306, also Phil. Mag., 3rd ser., vol. xxxv. p. 422, and Comp. Rend., xx. 1287, xxii. 432; Matteucci, Arch. de l’Elect., v. 389; Guillemin, Comp. Rend., xxii. 264; Wertheim, Comp. Rend., xxii. 336, 544, xxvi. 505, also Ann. de Chim. et de Phys., xxiii. 302, and Phil. Mag., 3rd ser., vol. xxviii. p. 544; Jannair, Comp. Rend., xxiii. 319; Joule, Phil. Mag., 3rd ser., vol. xxv. pp. 76, 225; Laborde, Comp. Rend., 1. 692; Poggendorff, Pogg. Ann., lxxxvii. 139, xcviii. 198; Du Moncel, Exp. de l’Elect., ii. 125, iii. 83; and Delesenne, Bibl. Univ. (1841), xvi. 406.
- ↑ See also Didaskalia: Blätter für Geist, Gemüth, u. Publicität, Frankfort, No. 232, 28th September 1854; Du Moncel, Exposé des Applications de l’Electricité (Paris), ii. 25, ed. 1854; iii. 110, ed. 1856, and Comp. Rend., 26th November 1877.
- ↑ The English reader may consult—Jour. Soc. Tel. Eng., March 1883; British Assoc. Rep., 1863; Civ. Eng. and Arch. Jour., xxvi. 307; R. M. Ferguson, Electricity (London, 1866), p. 257; S. P. Thompson, Philipp Reis, the Inventor of the Telephone (London, 1833).
- ↑ See A. G. Bell, “Telephone Researches,” in Journ. Soc. Tel. Eng., 31st October 1877.
- ↑ The extreme smallness of the magnets which might be successfully employed was first demonstrate by Professor Peirce of Brown University, Providence, R.I.
- ↑ See George B. Prescott, The Speaking Telephone (London, 1879), pp. 151–205.
- ↑ Scientific American, 18th June 1881.
- ↑ Electrostatics and Magnetism, p. 236.
- ↑ See Tel. Journ., 1st August 1877, p. 178; also Adams, Journ. Soc. Tel. Eng., 1877, p. 476.
- ↑ See Journal of the Telegraph, New York, April 1877; Philadelphia Times, 9th July 1877; and Scientific American, August 1877.
- ↑ This term was used by Wheatstone in 1827 for an acoustic apparatus intended to convert very feeble into audible sounds; see his Scientific Papers, p. 32.
- ↑ See Proc. Roy. Soc., xxvii. 362; Proc. Phys. Soc., ii. 255; Phil. Mag., 5th ser., vol. vi. p. 44; W. H. Preece, Journ. Soc. Tel. Eng., vii. 270.

