Page:Collected Physical Papers.djvu/360
This page has been validated.
340
SELF-RECORDING RADIOGRAPH
ohms in the dark. An approximately equal resistance is placed in the second arm of the bridge. A rheostat having a large number of turns of fine wire with a sliding contact is used for the two variable arms of the bridge, diagrammatically represented by a straight line. Under exact balance the galvanometer deflection is reduced to zero. The balance is upset when the selenium cell is exposed to light and the resulting deflection gives a measure of the intensity of light.
The Automatic Keys
After previous adjustment of the balance in the dark the electric circuit is completed by the closure of key K₁;

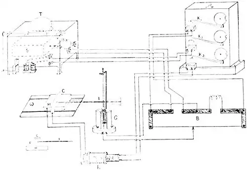
Fig. 106. The Self-recording Radiograph.
The selenium cell, S is periodically exposed to light by the electromagnetic shutter, T. The selenium cell forms one arm of the Wheatstone Bridge, B. The three keys, K₁, K₂, K₃, are periodically closed and opened by clockwork. G, the recording galvanometer with index, I, carrying double-pointed platinum at its end, which moves between the metal strip, C, and the plate, M. R, sparking coil with its electrodes connected with C and M. The battery is not shown in the figure (see text).