Page:Popular Science Monthly Volume 60.djvu/138
Such is the home of the laboratory. It may be of interest to compare it with the Reichsanstalt.
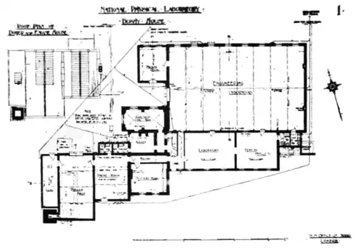
The floor space available is much less than that of the Reichsanstalt. But size alone is not an unmixed advantage; there is much to be said

in favor of gradual growth and development, provided the conditions are such as to favor growth. Personally I would prefer to begin in a small way, if only I felt sure I was in a position to do the work thoroughly, but there is danger of starvation. Even with all the help we

get in freedom from rent and taxes, outside repairs and maintenance, the sum at the disposal of the committee is too small. £14,000 will not build and equip the laboratory. £4,000 a year will not maintain it as it ought to be maintained. Contrast this with the expenditure on the Reichsanstalt or with the proposals in America where the bill